(2012年)青島某建筑地下室上浮
青島商業綜合體,由一棟超高層辦公樓及高層裙樓(銀座商場)兩部分組成。整組建筑地下室部分東西總長123.550m,南北總寬125.900m;地上部分東西總長112.160m,南北總寬118.350m。
超高層辦公樓(即A區辦公樓)位于整組建筑的東南部分,為地下三層、地上三十七層B級高層建筑。高層裙樓(即B區商業)位于整組建筑的西部及北部,為地下3層,地上6層建筑物。
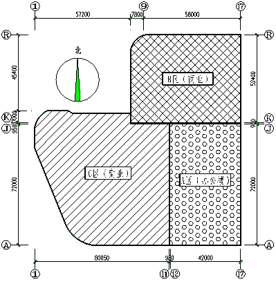
本工程地下部分連為整體,地上部分設置抗震縫,將整個結構分為三個獨立的結構單元:超高層辦公樓及與之連為一體的裙樓部分為A區,A區北側的商業裙樓部分為B區,A區西側的商業裙樓部分為C區,青島銀座結構分區示意圖見圖1。
2011年開工建設,至檢測該建筑已施工至±0.000m標高處。在建設過程中,于2012年5月初發現地下室存在起拱、上浮現象,部分梁、柱、板以及剪力墻等構件出現開裂現象。
該建筑物C區地下室上拱、上浮主要集中在C區,經檢測:
I)現澆混凝土構件的抗壓強度、鋼筋配置、截面尺寸滿足原設計要求,框架梁的撓度值滿足規范要求;地下三層~地下一層共測試170棵框架柱的垂直度,79棵框架柱的不滿足規范要求,合格率為53.5%;各層相對標高有一定的對應關系,即相對較大(或較小處)在同一位置;地下一層地面與地下一層頂的相對標高也有一定對應關系。因此樓面或板底存在的高差,主要是由于基礎變形(上浮或下沉)引起的。
圖1 分區平面示意圖
II)構件開裂情況檢測結果
(1)框架柱及框架梁
地下三層4-10~B~H軸間以及2-6~A-D軸間弧形區域框架柱開裂較嚴重,地下二層及地下一層框架柱在D-G~4-8軸間開裂較嚴重;開裂部位主要集中在柱上端、下端,下端較上端開裂嚴重;柱開裂較嚴重側面,柱的上端與下端大多位于相對側面;開裂較嚴重框架柱的裂縫形式為一側面水平裂縫,相鄰側面為斜裂縫;部分框架柱下部存在明顯的受拉開裂及受壓開裂區域;框架梁開裂較明顯,裂縫在梁端的開裂形式主要為豎向裂縫和斜裂縫兩種,部分構件開裂較嚴重。
經分析可知,主要是由于地基沉降(或上浮)變形不一致引起的。
(2)剪力墻
地下三層C區10~A-B軸墻體、8~A-B軸墻體以及1/E~2-3軸間墻體裂縫的開裂形式均為斜裂縫,且裂縫走向為下端指向地基變形較大一側,上端指向地基變形較小一側,上述墻體裂縫主要是由于地基沉降(或上浮)變形不一致引起的。
地下三層~地下一層其他墻體裂縫以豎向裂縫為主,剪力墻的開裂,主要是由于溫度變化及混凝土收縮引起的;地基沉降(或上浮)變形不一致加劇了裂縫的開裂及發展。
III) 地層、抗浮錨桿試驗結果
(1)通過取芯檢測,各孔芯樣地層情況與原記錄基本一致。1#、2#孔位于中粗粒花崗巖地層,3#、5#孔位于糜棱巖地層,4#、6#孔位于碎裂巖地層。所抽檢防水板的混凝土強度滿足設計要求。
(2)通過錨桿抗拔試驗:
所測抗浮錨桿設計抗拔承載力極限值為520kN,抗拔試驗所測極限承載力分別為338kN和492kN,未達到設計要求。由于地下室防水板在上浮時對錨桿造成較大損害,且錨桿周圍巖體產生松動導致其承載力降低,因此抗拔試驗結果不能反映原設計狀態,僅可作為下一步進行抗浮驗算的參考依據。
IV)抗浮加固建議:
(1)原500mm防水底板(包括B區、C區,A區設置防水板位置)上部新增鋼筋混凝土筏板,筏板厚度1.0m,并與原基礎形成整體。
(2)產生上浮區域巖石地基進行高壓注漿處理。
(3)C區未進行抗浮錨桿施工區域,按照原抗浮錨桿設計方案進行施工,但抗浮錨桿應進行二次注漿。
(4)16-17軸區域僅±0.000以下有建筑物,該區域已按設計要求施工了抗浮錨桿,該區域需對抗浮錨桿進行加強。
(5)B區、C區上部主體結構施工完成之前不得停止降水。
根據上述檢測結果,對上部結構進行了加固處理;并采取了增設了錨桿。
作者:王靚
編審:李瑩
終審:張鑫
-
山東建固
建大加固院
-
(0531)86367232



地址:濟南市歷山路96號山東建筑大學(和平校區)
電話:(0531)86367232
傳真:(0531)86993042